
Wisconsin Overlook
A Unique Investment Opportunity in Observatory Circle
NewCity is redeveloping a 0.44-acre lot just north of Georgetown and Glover Park into three distinctive homes. The project will progress in two phases.
Phase 1 - NewCity will permit and renovate the existing single-family home on the property. The project will include all new systems and high-end finishes. In addition, a second floor will be added to the existing detached garage which will house an in-law/au pair suite that can also function as a rental apartment. Delivery is expected in late Spring 2025.
During Phase 1, NewCity will design, plan, and permit the work scheduled for the project’s second phase.
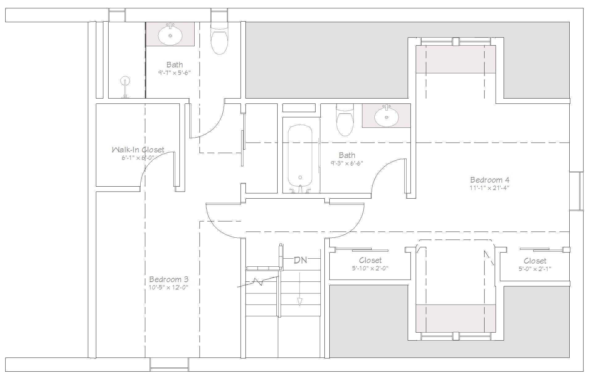
Phase 2 - NewCity will subdivide the lot on the corner of Wisconsin Avenue and Edmunds Street, NW, into two parcels. Two ultra-high-end luxury homes will be constructed, each with four levels and approximately 8,000 SF of finished space. Each new home will include a 2,700 SF footprint, six ensuite bedrooms, multiple outdoor living spaces, and an integrated 2-car garage.
Delivery is expected in Fall/Winter 2026.
Project Location
Wisconsin Overlook is located in Observatory Circle, one of Washington, DC’s most valuable and well-positioned neighborhoods. It will target discriminating buyers who want a unique blend of urban and suburban. Two of the three homes will be Washington, DC unicorns: new ground-up construction right in the heart of the City. These homes will offer large footprints on generous lots with extensive private outdoor spaces, while remaining easily walkable to shopping and dining — just five minutes on foot to the Glover Park Whole Foods and ten to Georgetown.
Phase 1 Project Vision
Renovation of 2619 Wisconsin
Floorplans
Renderings
Terrace Level




1st Level
2nd Level
Exteriors
Phase 2 Project Vision
2 New 7,950 SF Homes
-
Rec Room, Bedroom, Den, Bath, Wet Bar, Utility, Storage, Patio, Elevator
-
Foyer, Powder Room, Study, Dining Room, Great Room, Breakfast Room and Kitchen, Butlers Pantry, Walk In Pantry, Mud Room, Garage, Deck, Elevator
-
4 Bedroom Suites, Laundry Room, Linen Closet, Screened Porch, Elevator
-
Lounge, Bedroom Suite and Mechanical Room, Roof Deck, Elevator
Inspiration Photos
Document Library
FAQs
-
NewCity is a developer, development consultant and general contractor in Washington DC that has been in business for nearly 20 years. See these links for more information about the company:
— Project Stories
— Photos Galleries
— Company Overview
— Team
— Development Framework -
June ‘24 - Acquire property
September ‘24 - Start construction for renovation
Late Spring ‘25 - Complete renovation and addition at 2619 Wisconsin
Summer/Fall ‘25 - Sell 2619 Wisconsin and begin work on the new homes
Winter ‘26/’27 - Compete and sell the new homes -
We will raise approximately $2.5 million in private investment for this project. In addition, there will be $1.5 - $2 million in seller investment. The exact amount of private capital required will depend on the seller’s final financing amount.
We prefer as few investors as possible, so once we understand the desired investment amount of each member of the potential investor pool, we will accept funds in descending order until the target is reached.
-
We are looking for all commitments by May 20, 2024 and all funds to be wired by May 27th.
-
An accredited investor is a person or entity that is allowed to participate in investments not registered with the SEC. These are typically high-net-worth individuals and companies with the means and experience to trade private, riskier investments. For more specific information, consult with your investment advisor or visit this SEC website page.
-
Indeed we do! It is a part of Washington lore and it is very dear to the family that has owned it since it was built in 1935. They are very excited to witness its transformation. For more, see this Washingtonian article